Актуальные цены уточняйте у менеджеров по телефону указанному на сайте.Актуальные цены уточняйте у менеджеров по телефону указанному на сайте.Актуальные цены уточняйте у менеджеров по телефону указанному на сайте.
Написать в MAX

Участок #127

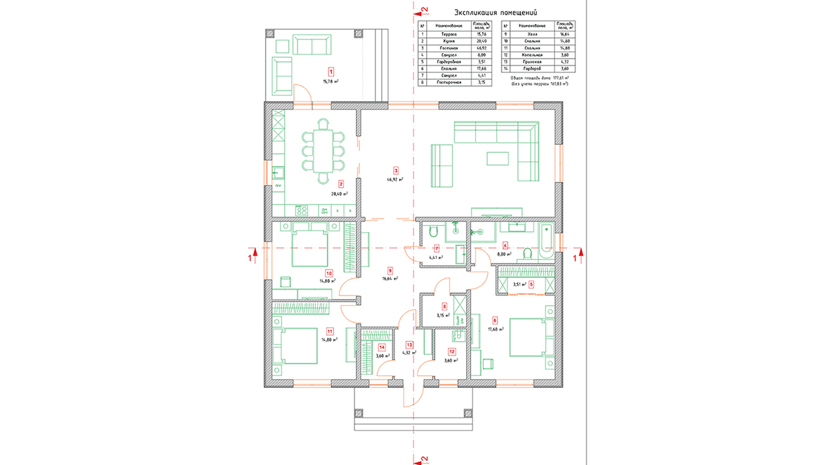
Дом / Площадь: 160 кв.м.

Описание

Одноэтажный коттедж площадью 160кв.м. на участке 8 соток в новом, современном поселке бизнес-класса «Фоксфорд», который строится в едином классическом английском стиле, с современной инфраструктурой.
Все центральные коммуникации (газ, вода, электричество, канализация, высокоскоростной интернет).
В доме располагаются необходимые бытовые помещения: котельная, гардеробная, 2 санузла, кухня-гостиная. Кухня-гостиная и терраса образуют просторное и уютное пространство, которое позволит комфортно разместить здесь большие компании гостей. Также расположены 2 гостевые спальни и одна мастер спальня со своим санузлом и гардеробной.
Фундамент - буронабивные сваи, ленточный фундамент с монолитной плитой с использованием бетона марки М300 с гидроизоляционной добавкой, ширина ростверка 400 мм, высота ростверка 1000 мм, сечение свай 200х200 мм, глубина сваи 3000 мм. Стены возведены из газобетона Bonolit 300, d-500, утеплитель 50 мм, отделка клинкерной плиткой white hills (4 оттенка). Кровля - мягкая черепица Технониколь Shinglas.
Коттедж сдается без отделки, это позволяет оформить интерьер по своему вкусу. Будущих владельцев встретит выровненный участок и благоустроенная территория коттеджного поселка. В посёлке строятся современные детские площадки и площадки воркаут, живописная прогулочная зона вдоль речки. Зелёные газоны, красивые заповедные липы создают атмосферу уютного посёлка.
Поселок находится в 40 км от МКАД как по Киевскому шоссе так и по Калужскому шоссе, есть всегда альтернатива подъезда.

*Цена не является публичной офертой, окончательную цену уточняйте у менеджера