Актуальные цены уточняйте у менеджеров по телефону указанному на сайте.Актуальные цены уточняйте у менеджеров по телефону указанному на сайте.Актуальные цены уточняйте у менеджеров по телефону указанному на сайте.
Написать в MAX

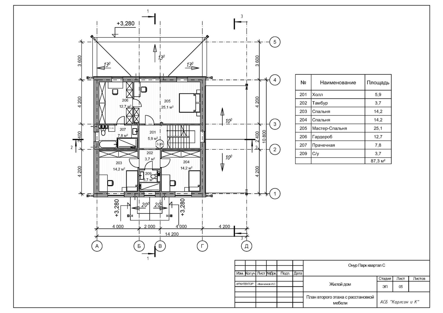
Дом #49

Дом / Площадь: 280 кв.м.

Описание

Продаётся строящийся двухэтажный дом премиального сегмента общей площадью 280 кв. м. с участком 8 соток в современном поселке бизнес-класса Фоксфорд, который строится в едином классическом стиле.

Новая серия домов, где каждая деталь продумана для вашего комфорта и самовыражения.

Основа — надёжность и свобода планировки
Полностью монолитный железобетонный каркас: фундаментная плита 300 мм, плиты перекрытий, лестничные марши и конструктивные колонны марки из бетона М 400(B30). Такое инженерное решение даёт возможность свободной планировки внутри дома — пространство не зажато несущими стенами. Вы сможете сами решить, где будут спальни, гостиная, кабинет или детская. Это дом для вашего творчества.

Стены и фасады — европейского качества
Внешние стены выполнены из керамических блоков Porotherm 38 Thermo (Wienerberger), которые обеспечивают отличную теплоизоляцию и микроклимат. Фасад облицован кирпичом ручной формовки Engels Limburgs Orange Bont (Нидерланды) — это выраженный статус, уникальная текстура и благородный цвет, который не оставит равнодушным.

Кровля и окна — премиум-класса
Финишное покрытие кровли — Ruflex Dranka: долговечная, эстетичная, не боится погодных условий. Окна — премиальная линейка KBE Expert с панорамным остеклением, пропускающим максимум света и сохраняющим тепло.

Мансарда — пространство для новых идей
Тёплое мансардное пространство — это готовый резерв для ваших увлечений. Сделайте там домашний кинотеатр, полноценную детскую игровую зону, спортзал или мастерскую. Всё ограничено только вашей фантазией.

Грамотная организация пространства
Котельная вынесена в отдельный блок с хозяйственной частью, что позволяет не загромождать основные комнаты. Вы получаете максимум полезной площади дома. Входная группа выполнена из арт-бетона — стильно, надёжно и эффектно.

Паркинг на любой вкус
Предусмотрена трансформируемая зона парковки: от интегрированного навеса до полноценного отдельного гаража. Выбирайте нужный вам вариант прямо сейчас.

Уютная терраса
Дом дополнен террасой — идеальное место для утреннего кофе или вечерних посиделок с семьёй. Участок в 8 соток позволяет реализовать ландшафтные идеи, не требуя при этом избыточного ухода.

В поселке все центральные коммуникации (газ, вода, электричество, канализация, высокоскоростной интернет).

Поселок находится в 40 км от МКАД как по Киевскому шоссе так и по Калужскому шоссе, есть всегда альтернатива подъезда.

Звоните, чтобы записаться на просмотр и лично оценить качество строительства, панорамные виды и атмосферу этого дома.
Документы готовы — возможны ипотека, а также рассрочка от застройщика до 1 года.

*Цена не является публичной офертой, окончательную цену уточняйте у менеджера